Porte levante-coulissante MB-77HS
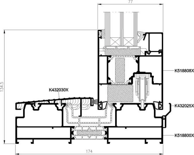
MB-77HS vue technique

MB-77HS - un classique hautes performances

Le MB-77HS fait partie des systèmes levants-coulissants les plus éprouvés, avec un excellent équilibre entre performances techniques, dimensions et budget.

Il est disponible en variantes thermiques différentes (ST et HI), pour s'adapter à tous types de projets.

Uw : a partir de 0,84 W/(m2K) Perméabilité à l'air : classe 4 Étanchéité à l'eau : classe 9A Résistance au vent : jusqu'à classe C4 Variantes : ST / HI Usage : portes terrasse et grandes baies
Caractéristiques techniques

MB-77HS

TypePorte levante-coulissante aluminium à rupture thermique
OuvertureManuelle, avec options de quincaillerie confort
Isolation acoustiqueÉlevée selon vitrage et configuration
ÉtanchéitéConforme aux exigences de bâtiments résidentiels performants
Compatibilité vitrageDouble et triple vitrage selon versions
FinitionsLarge gamme RAL, textures et anodisation

Source: documentation officielle ALUPROF MB-77HS.

Guide d'achat

MB-77HS : comment choisir la bonne configuration ?

Un produit a configurer sur mesure, selon votre projet

Une fiche technique donne une base, mais la vraie performance depend toujours de la configuration retenue. Chez Kaisen SA, nous traitons chaque dossier en sur mesure: dimensions reelles, orientation, niveau d'isolation du batiment, contraintes acoustiques, esthetique facade et budget. Cette approche permet d'eviter les solutions standard mal adaptees et d'obtenir un resultat coherent sur le long terme.

La plupart des gammes actuelles sont customisables: choix des vitrages, quincailleries, niveaux de securite, coloris, textures, accessoires de confort et options domotiques. L'objectif n'est pas d'accumuler des options, mais de choisir celles qui apportent un vrai gain pour votre usage quotidien.

Pourquoi la personnalisation est importante ?

Deux logements construits la meme annee peuvent avoir des besoins completement differents. Une facade tres exposee au soleil exigera une gestion thermique et solaire differente d'une facade nord. Un appartement en zone urbaine demandera souvent une priorite acoustique, alors qu'une maison individuelle peut prioriser la securite sur certaines baies. C'est pour cela qu'une menuiserie doit etre configuree par contexte, pas seulement par catalogue.

Les 5 points a valider avant commande

  • Dimensions et schemas d'ouverture : adaptation exacte au batiment et a l'usage.
  • Vitrage : choix thermique/acoustique/securite selon l'exposition et l'environnement.
  • Etancheite et pose : qualite des interfaces pour eviter infiltrations et ponts thermiques.
  • Confort et maintenance : facilite d'utilisation, robustesse et entretien simplifie.
  • Design : harmonisation avec facade, volets, portes et style architectural global.

Vitrage, confort thermique et acoustique

Le vitrage est une variable decisive. En pratique, c'est lui qui influence fortement la sensation de confort interieur, la temperature ressentie a proximite des baies et la reduction des bruits extérieurs. Une bonne configuration permet de stabiliser le confort hiver/ete et de limiter les consommations de chauffage ou de refroidissement.

Securite et quincaillerie

Selon vos priorites, on peut integrer des ferrures renforcees, des points de verrouillage supplementaires et des options anti-intrusion. Le bon niveau de securite se determine zone par zone (rez-de-chaussee, acces terrasse, facade peu visible), pour rester efficace sans surcout inutile sur l'ensemble du projet.

Performance reelle = produit + pose

Meme un excellent systeme peut perdre une partie de ses performances s'il est mal pose. C'est pourquoi nous appliquons une methode complete: releve precis, validation technique, preparation des supports, pose, reglage et controle final. Cette rigueur garantit la durabilite, la fluidite d'usage et la stabilite des performances dans le temps.

En renovation, cette etape est encore plus critique car les supports existants peuvent presenter des irregularites. L'objectif est de traiter correctement les jonctions pour conserver l'etancheite globale de l'enveloppe et eviter les pertes de confort a moyen terme.

Esthetique, finitions et valeur patrimoniale

Une menuiserie bien choisie améliore aussi la valeur percue du bien. Les finitions actuelles (teintes, textures, bicoloration, aspects metalliques ou bois) permettent d'adapter le rendu a l'architecture sans compromettre les aspects techniques. Cette coherence visuelle est importante, notamment sur les projets de renovation complete ou de revente.

Notre conseil Kaisen SA

Traitez votre menuiserie comme un investissement long terme. Le meilleur choix est celui qui combine confort, performance, durabilite et budget maitrise. Avec une configuration sur mesure et personnalisable, vous obtenez un produit mieux adapte a vos habitudes, plus agreable a utiliser et plus rentable sur la duree.